Wir sind bestrebt, unsere Umweltleistung zu verbessern, indem wir unseren ökologischen Fußabdruck verringern und gleichzeitig als Nachhaltigkeitsfaktor für unsere Kunden agieren. Mehr erfahren
Produktbild ZAL102V
Produktbild ZAL102V
Hager Produktdatenblatt ZAL102V
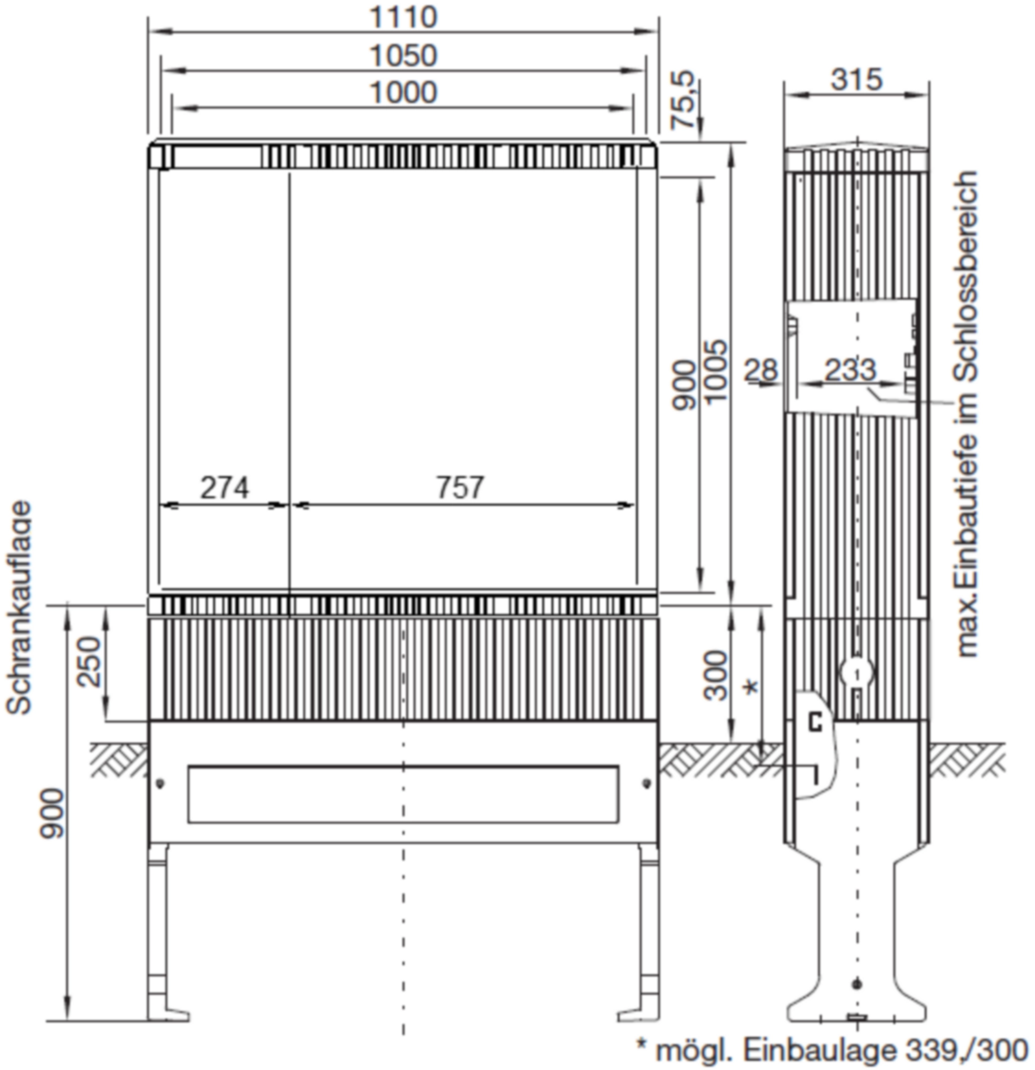
Kabelverteilerschrank Gr.2/1005, asym. Türen, mit MP, 1005x1110x315mm (HxBxT)
Montageanleitung Schließvorrichtung für 2 Profilhalbzylinder
Bedienungsanleitung de-DE 2016-04-25
Montageanleitung für ZAF100A, ZAK080GA, ZAK100GA, ZAL080, ZAL100 - Kabelverteilerschränke, Festplatzverteilerschränke (DE, Stand: 11.2015)
Bedienungsanleitung de-DE 2015-11-05
Montageanleitung für ZAY95075 - Sockelfüller, Zubehör
Bedienungsanleitung de-DE 2022-02-01
6LE007349A
Montageanleitung International 2020-04-02
Montageanleitung für Türgriff KVS/ZAS
Montageanleitung International 2020-01-01
Datenblatt de-DE 2025-07-04
Datenblatt en-GB 2025-07-04
Hagerplan - Der Ausschreibungstextkonfigurator
Ausschreiben leicht gemacht
Konformitätserklärung en-GB 2025-05-27
Die technische Anwendungsberatung hilft Ihnen persönlich rund um Themen der Türkommunikation weiter.
Name der Produktliste (maximal 55 Zeichen)
Wählen Sie Ihren Händler aus, um auf Ihre professionellen Preise zuzugreifen und online einzukaufen